Le cabine armadio sono diventate un vero e proprio status symbol: riuscire a averne una in casa rappresenta indubbiamente un punto di arrivo.
Iscriviti alla Newsletter
Le cabine armadio sono diventate un vero e proprio status symbol: riuscire a averne una in casa rappresenta indubbiamente un punto di arrivo.

Global Night 08, composizione armadio e cabina – La Casa Moderna (photo credit Clara Buoncristiani PR Boutique Firm)
Ecco cosa troverai in questo articolo:
Le cabine armadio rappresentano oggi un vero e proprio status symbol: riuscire ad averne una nella propria casa rappresenta indubbiamente un punto di arrivo.
La cabina è spesso percepita come un segno di lusso e di benessere e possederne una è considerato un indicatore di successo e di cura per la propria abitazione. Questo desiderio di eleganza e comfort ha portato molte persone a desiderare uno spazio dedicato esclusivamente ai propri indumenti e accessori.
Non bisogna poi dimenticare l’influenza dei media e delle celebrità. Le case di personaggi famosi, spesso dotate di cabine armadio spettacolari, sono ampiamente pubblicizzate e contribuiscono a creare un ideale di abitazione perfetta che molti aspirano a raggiungere. Programmi televisivi, riviste di arredamento e social media mostrano frequentemente cabine armadio come elementi essenziali di una casa moderna e di tendenza.
Bisogna però fare i conti con la realtà: ostinarsi a voler ricavare per forza cabine armadio in case dove non è possibile, conduce al risultato contrario.
In questo articolo, ti illustrerò cinque miei progetti in cui è stato possibile ricavare un ampio spazio dedicato ad abiti e accessori, qualcuno dei quali potrebbe esserti da fonte di ispirazione.
Tuttavia, valuta in maniera obiettiva se nel tuo caso la cabina è la scelta più opportuna e non dimenticare il mio personale mantra: meglio un grande armadio che una piccola cabina!
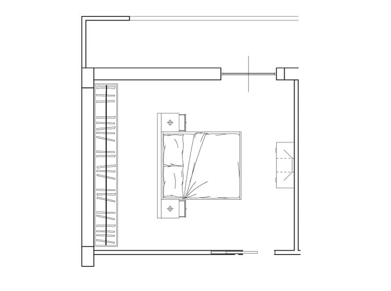
Il primo progetto che voglio illustrarti è un esempio di come sia possibile trasformare una difficoltà in un’opportunità: la stanza si presentava problematica a causa delle sue dimensioni, essendo molto lunga e stretta (quasi 6 metri di lunghezza per soli 3,30 metri di profondità).
È stato quindi naturale destinare la parte più interna della stanza, quella cieca, alla cabina armadio. Nella zona illuminata da una porta finestra che conduce al balcone sulla strada, invece, è stato posizionato il letto.
La cabina armadio è stata allestita a C, su tre lati, risultando così molto capiente e ben organizzata. Per la chiusura, ho suggerito una doppia porta scorrevole a scomparsa, del tipo a scrigno. Tuttavia, è possibile optare anche per altre soluzioni, come porte completamente vetrate o pannelli a tutta altezza.
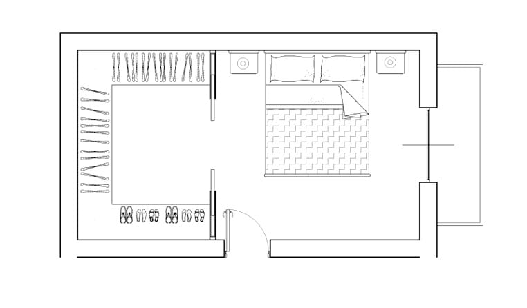
Il secondo progetto dà vita a una vera e propria master suite, un rifugio di relax e comfort all’interno dell’appartamento. Ampie metrature permettono di realizzare un ambiente raffinato e funzionale, dedicato al benessere e al riposo.
La camera da letto, cuore pulsante della suite, si apre su un bagno en suite e una cabina armadio capiente. L’accesso avviene tramite due ingressi separati, garantendo privacy e praticità. La cabina armadio, dotata di appenderia a L su due lati, offre ampio spazio per riporre abiti e accessori. La configurazione a L, scelta rispetto a una disposizione su tre lati, favorisce un accesso agevole e confortevole.
Il bagno, finestrato e luminoso, è arredato con vasca idromassaggio, mobile con doppio lavabo e sanitari, rappresentando un’oasi di relax dove abbandonarsi al benessere.
Come nel primo progetto, la scelta per le porte ricade sulla soluzione a scrigno, sia per il bagno che per la cabina armadio, per ottimizzare gli spazi.
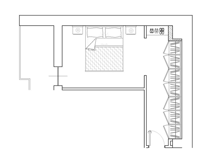
In questo terzo progetto ho affrontato la sfida di ristrutturare un appartamento con un’unica esposizione. Come in tutti gli alloggi di questo tipo, le stanze erano disimpegnate da un lungo corridoio posto nella parte cieca della casa.
Per ovviare a questo problema e sfruttare al meglio lo spazio disponibile, è stata realizzata una cabina armadio passante (o pass through). Questa soluzione accorcia visivamente il corridoio e funge da passaggio verso la zona letto, che a sua volta si apre su un balcone, l’unica fonte di luce naturale dell’appartamento.
Pur optando per una cabina armadio chiusa, i committenti hanno scelto una soluzione con ante a vetro fumé. Questa finitura permette di intravedere il contenuto degli armadi, facilitando la ricerca degli abiti e donando un tocco di eleganza all’ambiente. Le ante chiuse, inoltre, proteggono i vestiti dalla polvere, mantenendoli in ordine e al sicuro.
In questo quarto progetto, ti presento una soluzione alternativa alla cabina armadio classica: un capiente armadio posizionato alle spalle del letto matrimoniale. Questa scelta è particolarmente indicata per chi desidera sfruttare al meglio lo spazio disponibile nella stanza, senza dover rinunciare alla funzionalità e all’estetica.
Il letto è poggiato a ridosso di un muretto basso che crea una zona distinta della stanza che ricorda appunto una cabina armadio. Questa soluzione permette di organizzare al meglio i propri capi di abbigliamento e accessori, mantenendoli in ordine e a portata di mano. Il muretto basso, inoltre, può fungere da utile appoggio per lampade, decorazioni o altri oggetti.
Naturalmente, questa soluzione progettuale richiede una camera da letto di dimensioni adeguate, maggiori rispetto a quelle necessarie per la disposizione tradizionale con letto, armadio di fronte e comò a lato. Tuttavia, se disponi di una stanza sufficientemente grande, l’armadio dietro al letto rappresenta un’alternativa intelligente e funzionale, che ti permetterà di creare un ambiente elegante e armonioso.
Anche questo progetto, come il secondo che ti ho descritto, è relativo a un appartamento di dimensioni davvero molto ampie (circa 250 metri quadri).
È stato quindi possibile destinare un’intera stanza, adiacente alla camera matrimoniale, per la realizzazione di una cabina armadio che, di fatto, è una vera e propria stanza spogliatoio. È infatti dotata di due finestre e una porta-finestra che consente l’accesso all’ampio terrazzo. La sua conformazione è perfettamente speculare a quella della camera, dove la testata del letto è collocata sotto le finestre.
Ancora una volta ci troviamo di fronte a una vera e propria suite, perché la camera è dotata anche di un bagno dedicato a cui si accede da un disimpegno privato che porta anche all’ingresso della stanza.
ConclusioniDai progetti che ti ho illustrato avrai avuto modo di comprendere come sia possibile ricavare delle cabine armadio in alloggi di qualunque tipo: da quelli molto ampi, per pochi fortunati, alle case più comuni, anche con i loro difetti.
Per poter trovare una soluzione davvero confortevole ed efficace, è indispensabile però affidarsi alla consulenza di un professionista esperto, come un architetto o un interior designer.
E tu, quale dei progetti illustrati preferisci e perchè?
Iscriviti alla Newsletter